Cemetery Expansion Frascati, Italy
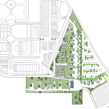
The project aims at exploiting the historical, architectural and aesthetic characteristics of the location by inserting the cemetery complex into a landscape system, supplemented with the terraced environment of Castelli Romani, a center close to the city of Rome. The original location has been reinterpreted by supplementing the built environment with the natural environment, giving rise to a structure that, while viable on many levels, becomes a garden where nature and artifice mingle to the point superimposing and dissolving into each other. It is not only a place of grief and lament, but a space for reflection: all activities that require a space that is other than the urban hubbub. The courts are the connecting structure between the outline of the new layout and the existing cemetery, and are morphologically different, all introverted, as a sort of filter, an area of mediation, which therefore adapts itself to the character of the place and the motivations for visiting it. Called “courts of silence,” they are marked by the alternating presence of olive and cypress trees and by an architecture that reinterprets the stratified, excavated hypogean architecture, placed below the green upper world, and this is why they have been lined with a local volcanic stone that echoes the area’s history. The backbone of the project is a promenade paysagèe and is configured as a “path of peace,” punctuated by olive and cypress trees, where the graves are hardly noticed. The promenade crosses the cemetery longitudinally and crosswise, joining two thematic gardens: the garden of memory and the garden of peace, and the main entrance with the chapel area. In the center, where the two paths meet, is “the plaza of prayer.” Here, around a great tub of water and the chapel, public services take place, and an area of quiet and meditation for visitors.
Credits: Design Architects: T-Studio | Engineering: Erregi
Published in: “Cemetery of Frascati” – German Iconic Award 08 ottobre 2018 – Monaco – Editore: Andrej Kupetz, LuttzDietzold, German Design Council – IBSN: 978-3-946318-37-8 (band 2 – Winner and Selection) – IBSN: 978-3-946318-36-1 (band 1 – Best of Best) Pubblicato in: Metamorfosi Quaderni di Architettura n.4, pp. 80-83, Lettera Ventidue Edizioni, Siracusa 2018 ISSN 1590 -1394 – ISBN 9788862422659 • Pisani M. (a cura di), Architettura e Paesaggio. Atti del congresso di Genzano, Il Formichiere, Foligno 2015, p. 63 ISBN 9788898428519 SALIMEI G. (2012- 2° ed. 2015), City Landscape. Bari: Ilios Editore ISBN9788890802430 pp.34-37













